Neubau Lintuktoto: Kleines Haus am Meer
Lintukoto ist der Legende nach der Ort, wo Himmelgewölbe und Meer aufeinandertreffen, wohin die Vögel im Herbst fliegen. Direkt aus dem Finnischen übersetzt, heisst es in etwa „Vogel-Zuhause“. Im Übertragenen steht Lintukoto für einen verborgenen Ort weit weg von allem.
Das kleine Haus am Meer wird das neue Sommerzuhause von Imma und Hans-Ruedi, in der Nähe des Dorfes und doch ganz für sich. Weiter tatkräftig mit dabei, übergeben sie die Hauptverantwortung für das Dorf an die nächste Generation und ermöglichen so das Gemeinschaftsprojekt Inseldorf.
Um die richtige Stelle für Lintukoto zu finden, den geheimen Ort zwischen den Baumwipfeln, mit Blick aufs Meer, kämpften sich Imma und Hans-Ruedi im Sommer 2015 stundenlang durch Dickicht und Dornengestrüpp. Nach einem langen Planungswinter begann dann der Neubau mit Rodungsarbeiten im April 2016. Das Haus wird in drei Bauetappen – je während der Sommermonate – von 2016-2018 erstellt.
Innen, aussen und der Raum dazwischen
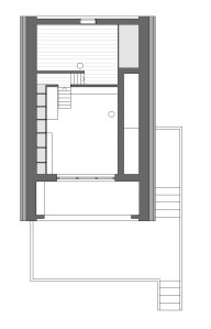
Die beheizbare Fläche des kleinen Hauses liegt inklusive Wände bei knapp 28m2 Grundfläche, was gerade noch im Toleranzbereich von nach Vorschrift 25m2 liegt. Grössere Gebäude dürfen nicht so nahe am Wasser gebaut werden. Ein Drittel der Grundfläche wird von der Sauna mit Vorraum eingenommen, der übrige, gut 15m2 grosse und bis zu 4.75m hohe Innenraum ist eine „Stube“, traditionellerweise ein multifunktionaler Raum. In Lintukoto wird in der Stube gekocht, gegessen, verweilt, geschlafen. Um den vorhandenen Raum bestmöglich auszunutzen, formt sich aus den geschlossenen Raumseiten gegen Westen und Norden ein Schlaf-/Aufbewahrungs-/Kochmöbel. Zusätzlichen Platz bietet der Parvi, der Schlupf über der Sauna.
Die Reduktion auf einen kleinen Innenraum lässt den eigentlichen Hauptakteur – die umgebende Landschaft – umso stärker wirken. Während die kleinen Fensteröffnungen auf der Nord- und Ostseite einen Ausschnitt der Landschaft unmittelbar zeigen, öffnet sich die Südostecke mit grossen Festverglasungen und Fenstertüren auf einen Zwischenraum zwischen innen und aussen. Ein gedeckter Aussengang verbindet Sauna und Stube und führt auf eine kleine Terrasse gegen Osten. Die gedeckte Veranda gegen Süden und Meer wird weitergeführt in einer etwas tiefer gelegenen offenen Terrasse. Gedeckter Aussenraum und Veranda sind in die Grossform des Hauses eingebunden. Die Mehrschichtigkeit der Aussenhülle wird durch die Farbgebung betont: Die äussere Hülle fügt sich mit hellem Grau in die Granitfelsen ein. Durch die Öffnungen leuchtet die „innere“ Fassade in traditionellem Rot.
Zu dem kleinen Haus am Meer gehört das noch kleinere rote Nebenhaus, in dem die Aussentoilette und ein Geräteraum untergebracht sind.









