Etwa 15m neben dem kleinen Haupthaus Lintukoto >> wird das noch kleinere rote Nebenhaus gebaut. Es umfasst gerade mal 6m2 und ist in zwei gleich grosse Räume aufgeteilt: Ein Aussenklo und einen Geräteraum. Das Dach kragt auf allen Seiten aus und schützt die Eingänge und den Brennholzstapel an der Rückwand. Dieser wird auf beiden Seiten von den überbreiten Giebelwänden eingefasst. Die Wandüberstände stützen das Vordach und geben den Giebelseiten ausgewogenere Proportionen.
Fundament
. 11.-13.07.2016 .
Für das kleine Gebäude reichen einfache Punktfundamente. Dazu werden Löcher in die Erde gegraben, in die direkt Beton gegossen wird. Wo grosse Felsbrocken vorhanden sind, werden in den Stein Armierungseisen eingemörtelt, die die Fundamente in den Felsen verankern. Zusätzlich werden Armierungseisen so einbetoniert, dass sie ein Stück weit überstehen und die Löcher der darauf gesetzten Zementsteine genau darauf passen. Die Mauersteinlöcher können dann wiederum ausebetoniert werden, um Fundamente und Mauersteine miteinander zu verbinden.
Auf die Betonfundamente werden Zementsteine gesetzt. Der Holzbau sollte mindestens 30cm über dem Terrain stehen, damit es keine Probleme mit Feuchtigkeit gibt. Vor aufsteigender Feuchtigkeit aus den Zementsteinen schützen Dachpappe- (Bitumen-) Stücke, die zwischen Steine und Holzbau geklemmt werden.
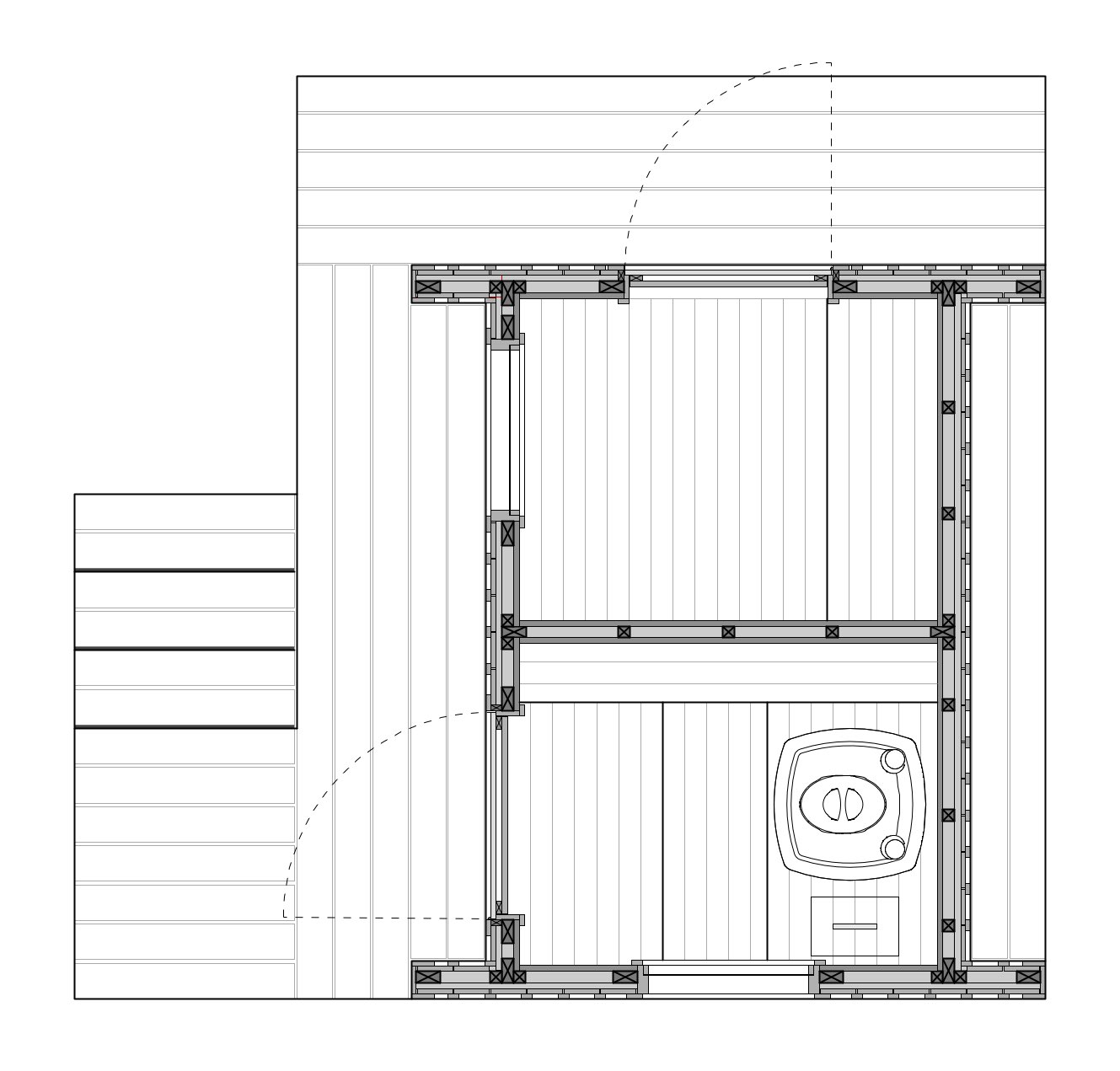
Holzunterkonstruktion
. 26.-27.07.2016 .
Das Tragwerk des Holzständerbaus besteht aus Bauholz mit den Querschnitten 48x48mm und 48x98mm, den kleinsten finnischen Normmassen. Da es beim Ständerbau, anders als beim Fachwerkbau, keine diagonalen Elemente auf Ebene der Unterkonstruktion gibt, wird das Ständerwerk erst stabil, wenn es innen und aussen verkleidet (beplankt) ist. Bis dahin sorgen temporäre Windverbände – diagonale Holzlatten – für die nötige Stabilität.
Das kleine rote Nebenhaus bauen Teuvo und Mika, zwei Allround-Handwerker aus der Region. Jeden Tag fahren sie mit ihrem Motorboot 30-40min bis zur Insel und abends wieder zurück. Nur bei Windstärken ab 10m/s müssen sie absagen, da wird die Fahrt zu gefährlich.
Um den Dachstuhl zu erstellen und das Dach decken zu können, bauen sich Teuvo und Mika ein Gerüst direkt an die Holzunterkonstruktion. Dazu montieren sie Holzbalken quer zum Gebäude aussen an die Holzständer und auf in den Boden gerammte Holzstützen, und schrauben auf diese Holzbalken parallel zu den Gebäudelängsseiten Bretter. Der Dachstuhl besteht aus einfachen Sparrenpaaren, die im First mit Nagelplatten verbunden sind.
Innenverkleidung und Dachplatte
. 01.-04.08.2016 .
Innen wird das Häuschen rundum (Boden, Wände, Decke) mit Rauhspundbrettern verkleidet. Ein preiswertes Baumaterial, das auf der flachen Seite viele Astlöcher hat, aber eigentlich ganz gut aussieht. Auch die einfachen Regalbretter sowie die Dachplatte werden aus den Rauhspundbrettern gefertigt. Die Reduktion auf nur ein Oberflächenmaterial im Innern ist ein einfaches Gestaltungsmittel, um die sehr kleinen Räume nicht überladen wirken zu lassen. Die interessante Raumform (schmal und hoch mit offenem Dachraum) tritt klarer hervor, wenn die Flächen direkt aufeinanderstossen, ohne Eck- und Zierleisten.
Bitumendachbahnen auf den Rauhspundbrettern sorgen für Schutz vor Regen bis das eigentliche Dach aus Blech eingedeckt ist. Teuvo und Mika bauen das Dach von unten her auf und nageln dann Leisten längs aufs Dach, auf denen sie sich mit den Füssen abstützen können.
Fassade und Fenster
. 08.-12.08.2016 .
Auf die Holzständer der Wandunterkonstruktion kommen aussen horizontal montierte Latten, auf die dann wiederum die vertikalen Fassadenbretter montiert werden können. Die rote Dachuntersicht und die weissen Dachrandbretter werden gestrichen, nachdem sie schon montiert sind. Alle anderen Fassadenbretter streicht Imma vor dem Montieren, das erleichtert das Malen und es muss nichts abgedeckt werden. Die klassische rote Leinölfarbe ist auch in dem harschen Inselklima sehr beständig, trocknet sehr langsam und ist in genau zwei Farbtönen erhältlich. Wir wählen für das kleine Nebenhaus nicht „Alte-Zeiten-Rot“, sondern das hellere „Italienisch-Rot“.
Die Fassade ist eine ortsübliche Boden-Deckel-Schalung. Der „Boden“, die untere Schicht, besteht aus breiteren Brettern, die mit ein wenig Abstand festgenagelt werden, damit sich das Holz bewegen kann. Die „Deckel“ sind schmalere Leisten, die die Nägel und den Spalt der unteren Schicht verdecken und der Fassade eine reliefartige Oberfläche geben. Unten werden die Deckel mit einer Tropfnase versehen, also abgeschrägt. So tropft Regenwasser schneller ab und das Brett trocknet rascher. Damit die Terrassenbretter, die im nächsten Jahr auf zwei Seiten eine Plattform bilden sollen, bis an den Fassadenboden herangeführt werden können, sind hier die Deckel weiter oben abgeschnitten.
Beim Nebenhäuschen sind auch die Fenster- und Türeinfassungen in traditioneller Bauweise ausgeführt, während sie beim Haupthaus etwas schlichter und moderner ausgeführt sein werden. Im Fenstersturz und als Fensterbank lassen leicht schräg gesetzte weisse Bretter das Regenwasser abfliessen. Die Fenster bestehen aus einfachen Glasscheiben, die an die äussere Fenstereinfassung gestossen und innen mit bündig zur Wandverschalung gesetzten Leisten fixiert werden. Fensterkitt dichtet gegen Zugluft ab.
Türen und Blechdach
. 25.08. / 01.-02.09.2016 .
Die Türblätter bestehen aus diagonal auf eine Platte montierten Fassadenbrettern, die grau lasiert werden.
Die Blechdachelemente werden genau auf Mass bestellt und zugeschnitten. Sie lassen sich recht einfach zusammenstecken und festschrauben. Blechdächer sind in der Anschaffung etwas teurer, aber auf Dauer einiges günstiger als Bitumendächer (Dachpappe), da sie viel länger halten. Ziegeldächer passen nicht so recht zu den skandinavischen Holzhäusern.
Was noch fehlt…: Die Plattform aus Terrassenbrettern auf zwei Seite und der Treppenaufgang, ein Handwaschbecken, ev. ein Innenanstrich. Nächstes Jahr.


















